Квартира с дизайнерским ремонтом в ЖК бизнес-класса

93 кв.м гармонии и комфорта на 17 этаже

16 000 000 ₽

Показ в удобное время

Черновые работы завершены, сантехника установлена

  • Отдельная гардеробная 9 м² и постирочная 6 м²
  • Окна на две стороны (Запад и Восток)
  • Панорамный вид с 17 этажа
Ванная комната

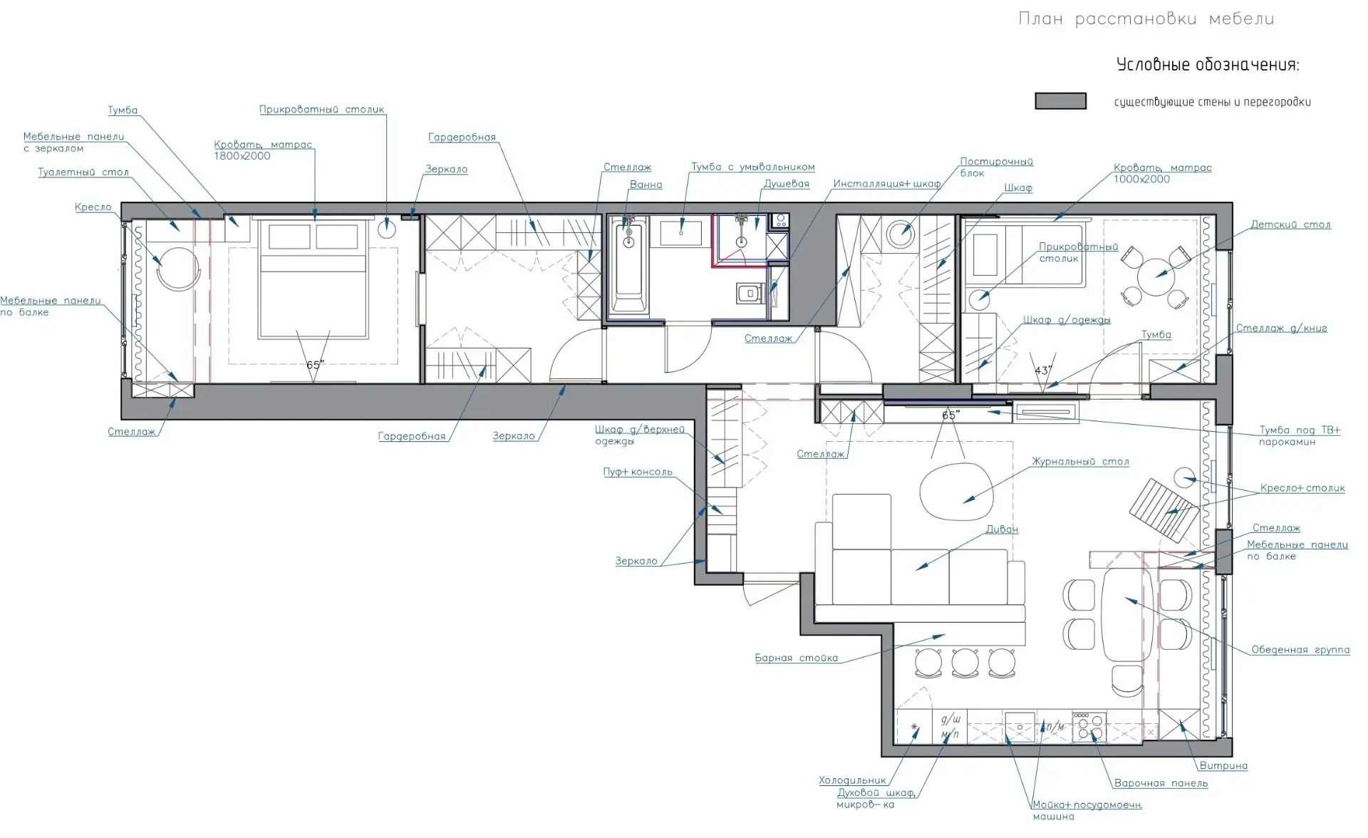
Планировка и площадь

План квартиры

Площади помещений:

  • Кухня-гостиная: 37 м²
  • Спальня: 15 м²
  • Детская: 13 м²
  • Гардеробная: 9 м²
  • Постирочная: 6 м²
  • Санузел: 5 м²
  • Прихожая: 8 м²
  • Общая площадь: 93 м²

Каждая комната с продуманным функционалом

Кухня-гостиная

Кухня-гостиная 37 м²

Просторное светлое пространство для семейных ужинов и приема гостей

Спальня

Спальня 15 м²

Изолированная комната для отдыха

Детская

Детская 13 м²

Отдельная комната для ребенка

Гардеробная

Гардеробная 9 м²

Целая комната для хранения одежды, чемоданов и сезонных вещей

Постирочная

Постирочная 6 м²

Идеальное место для стиральной машины, сушки и глажки

Санузел

Санузел 5 м²

Продуманная эргономика, сантехника установлена

Жилой комплекс Grand Park, 2023 год постройки

Дом снаружи
Подъезд
Двор
Парковка

Выбранный ракурс

Фасад комплекса

Современная архитектура, свежий фонд 2023 года и аккуратный внешний контур дома.

Преимущества дома:

  • Закрытая огороженная территория с охраной
  • Видеонаблюдение 24/7
  • Детская и спортивная площадки
  • Подземный паркинг
  • 2 бесшумных лифта в подъезде
  • На этаже всего 5 квартир
  • Колясочная и санузел в холле

Расположение:

Адрес: г. Пенза, ул. Лозицкой, 1А

Район: Ближнее Арбеково

Транспорт: Удобная транспортная развязка

Инфраструктура: Вся необходимая рядом (магазины, школы, садики)

Расположение на карте

г. Пенза, улица Лозицкой, 1А

Хотите увидеть квартиру?

Напишите или позвоните — покажу в удобное для вас время

Мессенджер

Telegram Написать в Telegram

Социальные сети

Гульнара Сенжапова Перейти в VK

Специалист по недвижимости: Гульнара

Финальный шаг

Запишитесь на просмотр в удобное время

Квартира готова к показу. Отвечу на вопросы по сделке и организую просмотр в день обращения.

93 м² 17 этаж 16 000 000 ₽